- Photos
- Localisation
- Infos Saint-fons



Description Appartement Saint-fons
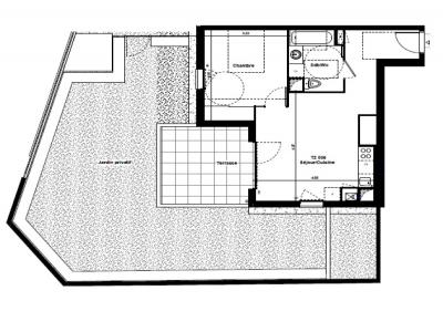
A005 - LE MARIUS - SPACIEUX T2 DE 44m² AVEC SON JARDIN PRIVATIF DE 79M² ET SA TERRASS DANS UNE RESIDENCE RECENTE (2021) BBC. Pièce de vie de 27m² avec cuisine US équipée et meublée (plaques vitro, four, hotte, meubles hauts et bas). Une grande chambre avec placard aménagé, salle de bain avec baignoire, vasque et WC.
Place de parking privative en sous-sol sécurisé. VIDEOPHONE.CHAUFFAGE IND AU GAZ.
CONSOMMATION D'ENERGIE TOTALE ENTRE 450EUR et 609EUR/AN (prix moyen des énergies indéxées au 01/01/2021)
Les informations sur les risques auxquels ce bien est exposé sont disponibles sur le site Géorisques : www. georisques. gouv. fr
Les informations sur les risques auxquels ce bien est exposé sont disponibles sur le site Georisques : georisques.gouv.fr
- Annonce Pro
- Pièces2
- Construction2021
- Surface44 m2
- DPEC
Contact



