- Photos
- Localisation
- Infos Noisy-le-sec




Description Appartement Noisy-le-sec
Réf. AN000315 - Possibilité de paiement des Frais d'agence en 3x sans frais*
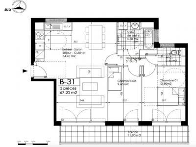
Imodirect vous propose, rue de Brément à Noisy-le-Sec, au 3ème étage avec ascenseur d'un immeuble récent et sécurisé, un T3 de 67,20 m² parfaitement agencé, prêt à vous accueillir.
Dès l'entrée, vous profitez d'un espace de vie convivial : un séjour lumineux avec cuisine ouverte, idéal pour recevoir et partager des moments au quotidien. L'appartement comprend deux chambres, une salle de bain ainsi que des WC séparés pour plus de confort.
Le vrai plus : un grand balcon de 11 m² orienté sud-est, avec vue très dégagée, au calme en c?ur d'îlot -- parfait pour vos petits-déjeuners au soleil, vos plantes ou un coin détente en fin de journée.
Bonus : l'appartement dispose également d'une cave et d'une place de parking au sein de la résidence.
Emplacement stratégique : à proximité du centre-ville, avec commerces et services accessibles facilement, et des transports (RER E / métro ligne 11).
Chauffage + eau chaude collectifs au gaz
Charges incluses : charges générales, chauffage, eau chaude et eau froide.
Date de disponibilité à confirmer.
*paiement en 3x sans frais possible sous condition d'éligibilité.
Classe énergétique : B (de 71 à 110).
Les frais d'agence sont de 873,60 E maximum.
ERP : Les informations sur les risques auxquels ce bien est exposé sont disponibles sur le site Géorisques : .
Pour toute question ou visite, merci de nous contacter au 09 80 80 01 91.
- Annonce Pro
- Pièces3
- Chambres2
- Sbd1
- Surface67 m2
- DPEB




