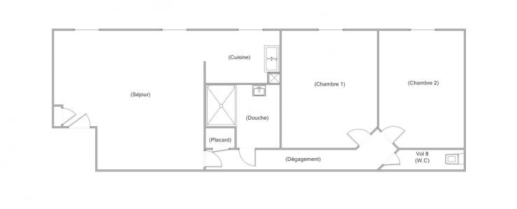
Appartement 3 pièces 56 m² 445 €/mois

Annonce n°19005151 : Découvrez cet appartement lumineux, niché dans un écrin de verdure et entouré d'arbres. La cuisine s'ouvre sur un balcon fermé, agréable pour profiter d'un espace supplémentaire au quotidien. L'appartement dispose de nombreux rang...










