My free account
Share
85676 real estate ads online
french version

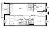
Apartment for sale in 3 rooms 65 m2 Seine saint denis (93100 France)

for sale apartment 3 rooms 65 m² 2 bedrooms district Seine saint denis

345 000 €


  • Photos
photo For sale Apartment MONTREUIL 93
Apartment  Apartment  Apartment  Apartment  Apartment  More photos...

Description Apartment Montreuil


Information on the risks to which this property is exposed is available on the Georisques website : georisques.gouv.fr

  • Ad Pro
  • Rooms3
  • Bedrooms2
  • Built2025
  • Land7 m2
  • Surface65 m2
  • DPEB

Contact

Further information



• Prix : 345000 €, 5310 €/m²

Ad n°18670317 - 166034-0410 published on 04/10/2025
Stats summary : 15 - Stats Detail : 1

Energy diagnostics


DPE : B
diagnostic DPE b

Contact agency

votre agent immobilier RESEAU IMMO-DIFFUSION (MONTPELLIER 34)
RESEAU IMMO-DIFFUSION
27 Place d'Aguesseau
34 MONTPELLIER
We speak :
view all ads from RESEAU IMMO-DIFFUSION
09.74.53.13.81


Receive similar ads
Today's favorites ads
For sale Apartment AULNAY-SOUS-BOIS CENTRE GARE
CASA ImmobilierFor sale Aulnay-sous-bois
Apartment 49 m2
209000 €