My free account
Share
85848 real estate ads online
french version

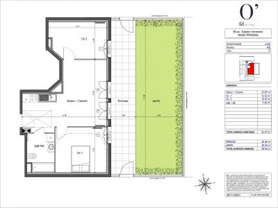
Apartment for rent in PERSAN 3 rooms 52 m2 Val d'Oise (95340 France)

for rent apartment 3 rooms 52 m² 2 bedrooms district Val d'oise

1 230 €/month


  • Photos
  • Locate
photo For rent Apartment PERSAN 95
Apartment PERSAN More photos...

Description Apartment Persan


Information on the risks to which this property is exposed is available on the Georisques website : georisques.gouv.fr

  • Ad Pro
  • Rooms3
  • Bedrooms2
  • Bathroom1
  • Living23 m2
  • Surface52 m2
  • DPEC

Contact

Further information



• Prix : 1230 €/month
• Charges : 160 €

Ad n°18687925 - 0071559_GL published on 11/10/2025
Stats summary : 91 - Stats Detail : 12

Energy diagnostics


DPE : C
diagnostic DPE c
GES : C
diagnostic GES c

Contact agency

CM - CIC GESTION IMMOBILIERE
2 rond point des AntonsBP70904
44703 ORVAULT
view all ads from CM - CIC GESTION IMMOBILIERE
08.09.10.28.80


Receive similar ads
Today's favorites ads
For rent Apartment LOUVRES
ACIEFor rent Louvres
Apartment 21 m2
675 €/month