My free account
Share
88031 real estate ads online
french version

Apartment for sale in 5 rooms 97 m2 Val de Marne (94400 France)

for sale apartment 5 rooms 97 m² 4 bedrooms district Val de marne

438 000 €


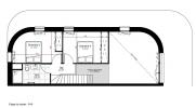
  • Photos
photo For sale Apartment VITRY-SUR-SEINE 94
Apartment  Apartment  Apartment  Apartment  Apartment  More photos...

Description Apartment Vitry-sur-seine


Information on the risks to which this property is exposed is available on the Georisques website : georisques.gouv.fr

  • Ad Pro
  • Rooms5
  • Bedrooms4
  • Land38 m2
  • Surface97 m2
  • DPEB

Contact

Further information



• Prix : 438000 €, 4520 €/m²

Ad n°18842541 - 179227-1912 published on 19/12/2025
Stats summary : 17 - Stats Detail : 0

Energy diagnostics


DPE : B
diagnostic DPE b

Contact agency

votre agent immobilier RESEAU IMMO-DIFFUSION (MONTPELLIER 34)
RESEAU IMMO-DIFFUSION
27 Place d'Aguesseau
34 MONTPELLIER
We speak :
view all ads from RESEAU IMMO-DIFFUSION
09.74.53.13.81


Receive similar ads
Today's favorites ads
For sale Apartment SAINT-MAUR-DES-FOSSES
For sale Saint-maur-des-fosses
Apartment 83 m2
592000 €