Description Apartment Chateauneuf-du-faou
Information on the risks to which this property is exposed is available on the Georisques website :
georisques.gouv.fr
- Ad Pro
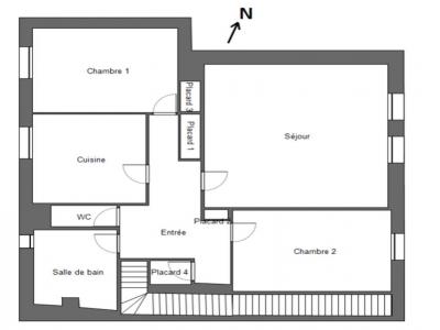
- Rooms4
- Bedrooms2
- Surface93 m2
- DPED
Further information
• Prix : 78000 €, 840 €/m²
• Fees : view fees scale
Ad n°18888362 - 434726BCP published on 14/01/2026
Stats summary : 1444 - Stats Detail : 84Energy diagnostics
DPE :
D
GES :
B
For sale near Chateauneuf-du-faou