My free account
Share
88324 real estate ads online
french version

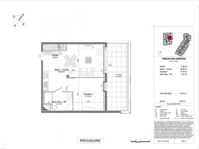
Apartment for rent in MORDELLES 2 rooms 40 m2 Ille et vilaine (35310 France)

for rent apartment 2 rooms 40 m² district Ille et vilaine

585 €/month


  • Photos
  • Locate
photo For rent Apartment MORDELLES 35
Apartment MORDELLES More photos...

Description Apartment Mordelles


Information on the risks to which this property is exposed is available on the Georisques website : georisques.gouv.fr

  • Ad Pro
  • Rooms2
  • Bedroom1
  • Living20 m2
  • Surface40 m2

Contact

Further information



• Prix : 585 €/month
• Charges : 40 €

Ad n°18965127 - 0068346_GL published on 23/02/2026
Stats summary : 16 - Stats Detail : 4

Contact agency

CM - CIC GESTION IMMOBILIERE
2 rond point des AntonsBP70904
44703 ORVAULT
view all ads from CM - CIC GESTION IMMOBILIERE
08.09.10.28.80


Receive similar ads

For rent near Mordelles

Favorites real estate agency