- Photos
- Localisation
- Infos Saint-gilles-les-bains




Description Bureau Saint-gilles-les-bains
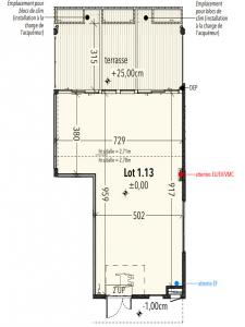
KOYTCHA IMMO vous propose à la location un local professionnel d'une surface totale de 79,48 m², dont 59,29 m² de surface utile et 23,19 m² de terrasse privative, situé à Saint-Gilles-les-Hauts, à proximité immédiate du rond-point du Centhor.
DISPONIBILITÉ PRÉVUE : FIN 2e TRIMESTRE 2027
Ce local fait partie du projet KREATIVE CENTER, un ensemble innovant de 4 000 m² dédié aux activités professionnelles, offrant un cadre de travail moderne et fonctionnel, à seulement 2 km de la Route des Tamarins.
Ce bien est livré aménagé et se compose de :
Une surface principale de 59,29 m²
Une terrasse privative de 23,19 m²
Un bloc sanitaire avec kitchenette
Prestations de qualité :
Finitions peinture murs et plafonds
Sols souples type CVT
Réalisation des branchements et alimentations électriques de base (plinthes techniques, chemins de câble au plafond, attentes pour points lumineux...)
Installation de la climatisation
2 places de parking privatives
Situation idéale dans un secteur dynamique, avec facilité d'accès et stationnement disponible, à proximité immédiate des axes routiers stratégiques.
Conditions locatives :
Loyer : 1 800 E HT HC / mois (soit 21 600 E HT HC / an)
Provisions pour charges : 180 E HT / mois, comprenant la taxe foncière refacturée au preneur ainsi que 10 % des charges de copropriété
Dépôt de garantie : 1 mois de loyer HT HC
Bail commercial 3/6/9 ans
Honoraires d'agence : 20 % HT du montant annuel du loyer HT HC à la charge du preneur
N'hésitez pas à nous contacter pour plus d'informations ou organiser une visite.
« Les informations sur les risques auxquels ce bien est exposé sont disponibles sur le site Géorisques :
»
Etages : R+1AscenseurAccés PMRPlaces de parking : 2ClimatisationCâblage réseauEtat de livraison : AménagéSolMurs enduitsElectricitéSanitairesPlafondVue mer
Informations complémentaires sur informations sur les risques auxquels ce bien est exposé sont disponibles sur le site Géorisques :
- Annonce Pro
- Surface80 m2


Location Saint-pierre