- Photos
- Localisation
- Infos Blanc-mesnil



Description Appartement Blanc-mesnil
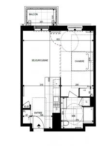
102 - L'ABSOLU : CHARMANT STUDIO AVEC BALCON ET BELLE LUMINOSITÉ
Ce charmant T1 de 39,96 m² se situe au premier étage dEURune résidence récente et calme. Son balcon de 3 m² orienté sud offre une belle lumière naturelle toute la journée.
La pièce principale, spacieuse et conviviale, est dotée d'une cuisine moderne équipée (four, plaques vitro, hotte, meubles de rangement). La salle d'eau, sobre et élégante, dispose d'un meuble sous vasque et dEURun sèche-serviettes.
Le sol en parquet apporte chaleur et élégance à l'ensemble. Parking privatif en sous-sol.
Résidence BBC, à proximité immédiate du RER B, des commerces et des axes A1/A3.
Le chauffage, l'eau chaude et l'eau froide sont inclus dans les charges.
Consommation d'énergie totale entre 208-282EUR par an (prix moyens des énergies indexés au 2021.2022.2023)
Les informations sur les risques auxquels ce bien est exposé sont disponibles sur le site Géorisques : www. georisques. gouv. fr
- Annonce Pro
- Pièces2
- Construction2025
- Surface39 m2
- DPEA



