- Photos
- Localisation
- Infos Blanc-mesnil



Description Appartement Blanc-mesnil
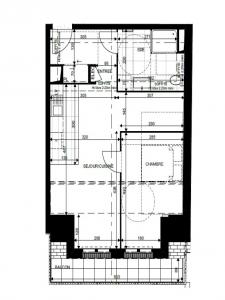
308 L'ABSOLU : T2 LUMINEUX AVEC GRAND BALCON DE 5 M² VUE AGRÉABLE ET LUMINOSITE GARANTIE AVEC SON EXPO SUD
Au troisième étage d'une résidence neuve, ce T2 de 45,46 m² bénéficie d'un grand balcon de 5 m² orienté sud, sans vis-à-vis, offrant un véritable espace de détente au quotidien.
Le séjour spacieux et lumineux accueille une cuisine moderne aménagée et équipée. Chambre parquetée, salle deau élégante avec meuble vasque et sèche-serviettes. L'ensemble allie confort, praticité et finitions contemporaines.
Le bâtiment répond aux dernières normes BBC, garantissant confort thermique et économies d'énergie. Parking privatif en sous-sol.
Quartier résidentiel, proche du RER B, des écoles et des commerces.
Les informations sur les risques auxquels ce bien est exposé sont disponibles sur le site Géorisques : www. georisques. gouv. fr
- Annonce Pro
- Pièces2
- Construction2025
- Surface45 m2
- DPEB



