- Photos
- Localisation
- Infos Blanc-mesnil



Description Appartement Blanc-mesnil
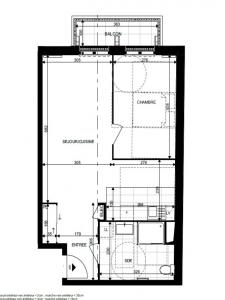
209 L'ABSOLU : T2 FONCTIONNEL ET LUMINEUX AVEC BALCON PRIVATIF VUE DEGAGEE
Ce T2 de 48,65 m² est situé au deuxième étage d'une résidence moderne. Il bénéficie d'un balcon couvert de 3,64 m² et d'une orientation lumineuse.
Le séjour-cuisine, spacieux et convivial, est entièrement équipé et aménagé (plaques, four, hotte, meubles hauts et bas). Une belle chambre en sol parquet, la salle d'eau moderne est équipée d'un meuble vasque et d'un sèche-serviettes.
Les prestations sont de qualité : double vitrage, isolation renforcée, chauffage individuel au gaz. Une place de parking privative complète le bien.
Proche du RER B, des commerces, du marché et des écoles.
Les informations sur les risques auxquels ce bien est exposé sont disponibles sur le site Géorisques : www. georisques. gouv. fr
- Annonce Pro
- Pièces2
- Construction2025
- Surface48 m2
- DPEB



