- Photos
- Localisation
- Infos Blanc-mesnil



Description Appartement Blanc-mesnil
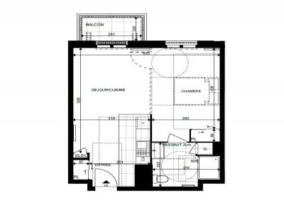
202 L'ABSOLU : CHARMANT STUDIO AVEC BALCON ET BELLE LUMINOSITÉ
Situé au deuxième étage d'une résidence récente et calme, ce beau studio de 39,96 m² bénéficie d'un balcon, idéal pour profiter d'un extérieur calme et sans vis-à-vis.
LEURappartement propose une pièce principale lumineuse avec cuisine moderne entièrement équipée (plaques, four, hotte, meubles hauts et bas). Salle d'eau contemporaine avec meuble vasque et sèche-serviettes.
Le parquet apporte chaleur et élégance à l'ensemble. Une place de parking privative en sous-sol complète ce bien.
Résidence sécurisée, à proximité immédiate des transports, commerces et services du centre-ville du Blanc-Mesnil.
Les informations sur les risques auxquels ce bien est exposé sont disponibles sur le site Géorisques : www. georisques. gouv. fr
- Annonce Pro
- Pièce1
- Construction2025
- Surface39 m2
- DPEB



