- Photos
- Localisation
- Infos Sancey-le-long




Description Terrain Sancey-le-long
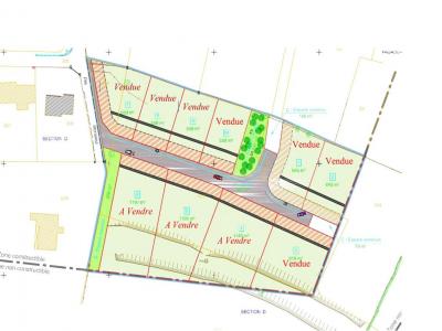
REF42970/1524 : Dans un lotissement en impasse, venez découvrir ce terrain viabilisé de 1105 m² ( lot n°5 sur le plan) idéalement situé en bordure de village avec vue imprenable . Plus que 3 lots disponibles, à découvrir sans tarder !
Contactez Pauline JOUILLEROT au 07.78.40.03.12.
Pauline JOUILLEROT (EI) Agent Commercial - Numéro RSAC : 953 724 796 - .
Les informations sur les risques auxquels ce bien est exposé sont disponibles sur le site Georisques : georisques.gouv.fr
- Annonce Pro
- Surface1105 m2
Contact



