- Photos
- Localisation
- Infos Sancey-le-grand




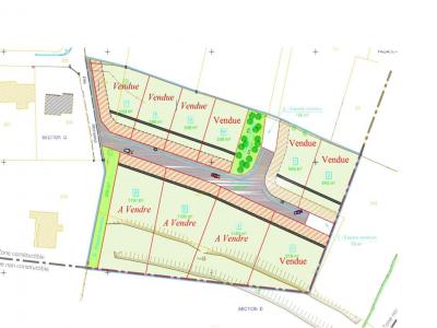
Description Terrain Sancey-le-grand
REF42971/1525 : Dans un lotissement en impasse, venez découvrir ce terrain viabilisé de 1197 m² ( lot n°6 sur le plan) idéalement situé en bordure de village avec vue imprenable . Plus que 3 lots disponibles, à découvrir sans tarder !
Pauline JOUILLEROT (EI) Agent Commercial - Numéro RSAC : 953 724 796 - .
Les informations sur les risques auxquels ce bien est exposé sont disponibles sur le site Georisques : georisques.gouv.fr
- Annonce Pro
- Surface1197 m2
Contact



