- Photos
- Localisation
- Infos Cluses



Description Appartement Cluses
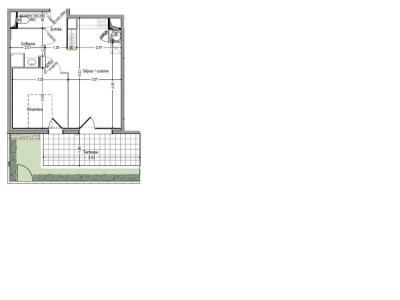
B005 CHATEAU THIERRY JOLIE T2 DE 39M²AVEC TERRASSE ET JARDIN PRIVATIF DE 20M² SITUE DANS RESIDENCE RECENTE BBC DE STANDING. L'appartement est composé d'un beau séjour vie donnant accès à une terrasse, une cuisine US équipée (hotte, plaques vitro, four, meubles haut et bas), une chambre en sol parquet avec placard, avec un accès à la terrasse, une salle de bain aménagée avec meuble sous vasque et sèche serviette. Garage fermé en sous-sol. Chauffage individuel gaz. Visiophone.
Consommation d'énergie totale entre 580-840EUR par an (prix moyens des énergies indexés au 2021.2022.2023).
Les informations sur les risques auxquels ce bien est exposé sont disponibles sur le site Géorisques : www. georisques. gouv. fr
Les informations sur les risques auxquels ce bien est exposé sont disponibles sur le site Georisques : georisques.gouv.fr
- Annonce Pro
- Pièces2
- Chambre1
- Sbd1
- Construction2020
- Surface39 m2
- DPEC
Contact



