- Photos
- Infos Saint-ouen






Description Appartement Saint-ouen
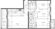
Fiche Id-REP166033 : Saint ouen, T4 4p 92m2 - terrasse cave parking d'environ 92 m2 comprenant 4 piece(s) dont 3 chambre(s) + Terrasse de 12 m2 - Construction 2023 Traditionnelle - Equipements annexes : terrasse - balcon - parking - digicode - double vitrage - ascenseur - cave - chauffage : Gaz - Plus d'informations disponibles sur demande... - Mentions légales : Proposé à la vente à 685000 Euros (honoraires à la charge du vendeur) - Affaire suivie par Mr Maximilien ZANIER (Agent immobilier - Responsable) - Reseau Immo-Diffusion Bagnolet - Pour plus d'informations, contactez notre secrétariat au 09 74 53 13 81 (Appel gratuit ou prix d'une communication locale)
Les informations sur les risques auxquels ce bien est exposé sont disponibles sur le site Georisques : georisques.gouv.fr
- Annonce Pro
- Pièces4
- Chambres3
- Construction2023
- Terrain12 m2
- Surface92 m2
- DPEB
Contact



