- Photos
- Localisation
- Infos Cluses



Description Appartement Cluses
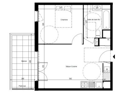
C201 Le Clusoé - VENEZ PROFITER D'UN JOLI T2 DE 40 M² AVEC BALCON ET SA VUE SUR LES MONTAGNES ET A L'INTERIEUR D'UNE RESIDENCE RECENTE BBC DE STANDING. Il se compose d'une belle pièce de vie donnant accès au balcon, cuisine équipée (meubles hauts et bas, hotte, plaque de cuisson et four), une chambre avec parquet au sol, salle de bain aménagée avec meuble sous vasque et sèche serviette. WC séparés. Garage double fermé en sous-sol. Chauffage individuel gaz. Visiophone.
Consommation d'énergie totale entre 442EUR et 598EUR par an (prix moyens des énergies indexés au 01/01/2021).
Les informations sur les risques auxquels ce bien est exposé sont disponibles sur le site Géorisques : www. georisques. gouv. fr
Les informations sur les risques auxquels ce bien est exposé sont disponibles sur le site Georisques : georisques.gouv.fr
- Annonce Pro
- Pièces2
- Chambre1
- Surface40 m2
- DPEC
Contact



