- Photos
- Localisation
- Infos Cluses



Description Appartement Cluses
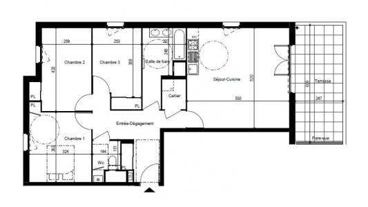
A001 Le Clusoé A SAISIR MAGNIFIQUE T4TRAVERSANT DE 83M² AVEC UNE TERRASSE A L'INTERIEUR D'UNE RESIDENCE RECENTE DE STANDING A FAIBLE CONSOMMATION ENERGETIQUE. Il se compose d'un séjour, cuisine équipée (hotte, plaques vitro, four, meubles haut et bas). Trois belles chambres avec placard et parquet au sol, une salle de bain aménagée double vasque meuble sous vasque et sèche serviette. Deux Garage fermé en sous-sol sécurisé. Chauffage gaz individuel. Visiophone.
Consommation d'énergie totale entre 744EUR et 1007EUR par an (prix moyens des énergies indexés au 01/01/2021).
Les informations sur les risques auxquels ce bien est exposé sont disponibles sur le site Géorisques : www. georisques. gouv. fr
Les informations sur les risques auxquels ce bien est exposé sont disponibles sur le site Georisques : georisques.gouv.fr
- Annonce Pro
- Pièces4
- Sbd1
- Surface83 m2
- DPEC
Contact



