- Photos
- Localisation
- Infos Erquinghem-lys



Description Appartement Erquinghem-lys
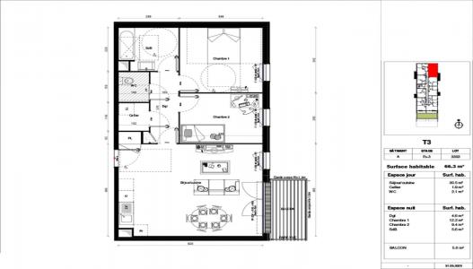
A Erquinghem-Lys, nous vous proposons dans la résidence neuve PAVILLON MUSICAL , un appartement de type T3 n°A303 de 66.3m². Situé au 3ème étage avec ascenseur, il se compose d'une entrée avec placard, un cellier, une salle de bain, un WC, une chambre de 12.2m², une seconde chambre de 9.4m², un séjour avec cuisine de 30.5m² donnant sur un balcon de 5m². En extérieur, une place de parking n°42. Chauffage individuel électrique. Eau froide, eau chaude, entretien parties communes, entretien ascenseur et espaces verts communs, compris dans les provisions sur charges mensuelles et donnant lieu à une régularisation annuelle. Les honoraires de location TTC (à la charge du locataire) incluent le montant de rédaction des états des lieux facturé pour 198euros TTC, après réalisation lors de l'entrée dans les lieux. Logement neuf, DPE à venir. Disponibilité mi-mars 2026. Pour plus d'informations, consultez notre site internet AFEDIM.
Les informations sur les risques auxquels ce bien est exposé sont disponibles sur le site Géorisques :
- Annonce Pro
- Pièces3
- Chambres2
- Sbd1
- Surface66 m2

