- Photos
- Localisation
- Infos Chaingy



Description Appartement Chaingy
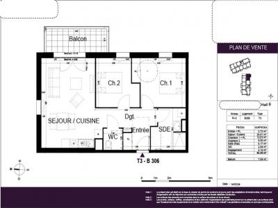
A LA CHAPELLE-SAINT-MESMIN, dans la résidence DOMAINE FLORESENS nous vous proposons un appartement T3 de 62.48m² avec une terrasse de 7.04m², situé au 3ème étage du bâtiment B, avec ascenseur. Il comprend un séjour/cuisine de 24.81m², deux chambres, une salle d'eau et WC séparé. Vous disposerez de deux emplacements de stationnement en sous-sol. Chauffage et eau chaude collectifs par pompe à chaleur. Eau froide, eau chaude, chauffage, entretien parties communes, ascenseur et espaces verts communs, compris dans les provisions sur charges mensuelles et donnant lieu à une régularisation annuelle. Les honoraires de location TTC (à la charge du locataire) incluent le montant de rédaction des états des lieux facturé pour 189 euros TTC, après réalisation lors de l'entrée dans les lieux. Pour plus de détails sur ce logement, vous pouvez consulter la fiche descriptive de ce bien, sur notre site internet AFEDIM. Logement en cours de construction - DPE à venir.
Les informations sur les risques auxquels ce bien est exposé sont disponibles sur le site Géorisques :
- Annonce Pro
- Pièces3
- Chambres2
- Séjour24 m2
- Surface62 m2

