- Photos
- Localisation
- Infos Ouistreham



Description Appartement Ouistreham
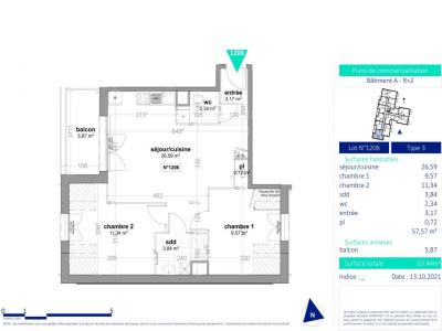
A OUISTREHAM, dans un environnement calme, nous vous proposons dans la résidence SWORD, un appartement T3 N°1206 de 57.57 m². Situé au 2ème étage avec ascenseur, il comprend une entrée, un séjour de 26.59 m² avec cuisine ouverte donnant sur un balcon de 5.87 m², deux chambres dont une de 9.57 m² et une autre de 11.34 m², une salle d'eau et un WC séparé. En extérieur, deux parkings N°40&41. Eau froide, chauffage et eau chaude individuels gaz. Entretien parties communes, entretien ascenseur et espaces verts communs, compris dans les provisions sur charges mensuelles et donnant lieu à une régularisation annuelle. Les honoraires de location TTC (à la charge du locataire) incluent le montant de rédaction des états des lieux facturé pour 174 euros TTC, après réalisation lors de l'entrée dans les lieux. Disponible le 04/05/2026. Pour plus de détails sur ce logement, vous pouvez consulter la fiche descriptive de ce bien, sur votre site internet AFEDIM
Les informations sur les risques auxquels ce bien est exposé sont disponibles sur le site Géorisques :
- Annonce Pro
- Pièces3
- Chambres2
- Séjour26 m2
- Surface57 m2
- DPEC



