- Photos
- Localisation
- Infos Tours



Description Appartement Tours
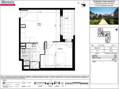
A TOURS, dans la résidence DOMAINE SAINT MARTIN, nous vous proposons un appartement T2 n°B205 de 39.91m². Situé au 2ème étage avec ascenseur, il comprend un séjour de 20.30 m² avec cuisine ouverte donnant sur une loggia de 4.97 m², une chambre de 12.28 m² ainsi qu'une salle d'eau avec WC. Cet appartement dispose d'un emplacement de stationnement en intérieur n°21. Chauffage et eau chaude individuels gaz. Eau froide, entretien parties communes, ascenseur et espaces verts communs, compris dans les provisions sur charges mensuelles et donnant lieu à une régularisation annuelle. Les honoraires de location TTC (à la charge du locataire) incluent le montant de rédaction des états des lieux facturé pour 120 euros TTC, après réalisation lors de l'entrée dans les lieux. Plus de détails sur notre site internet AFEDIM.
Les informations sur les risques auxquels ce bien est exposé sont disponibles sur le site Géorisques :
- Annonce Pro
- Pièces2
- Chambre1
- Séjour20 m2
- Surface39 m2
- DPEB



