- Photos
- Localisation
- Infos Bouxieres-aux-dames




Description Appartement Bouxieres-aux-dames
Appartement 4 pièces 54136 Bouxières aux Dames -
Disponible de suite
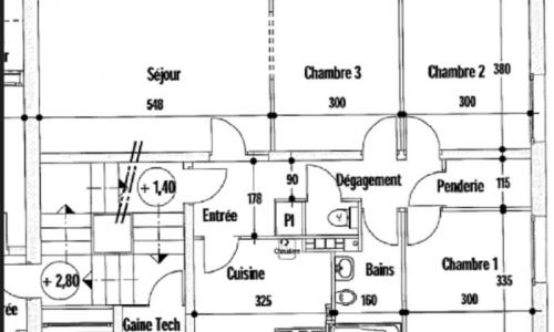
Beau 4 pièces de 80m2 en rez de chaussée dans
une résidence sécurisée.
Il saura vous séduire par son entrée
avec placard, vrai cuisine, salon-séjour, salle de bain, 3 chambres
La résidence est dotée contrôle d'accès
sécurisé.
Commune calme proche Nancy et proche des services
(poste, école, ...).
Dans les charges, sont compris : fourniture eau froid, entretien
de la résidence et des espaces verts, contrat de dépannage sur la robinetterie,
contrat confort, taxe d'enlèvement des ordures ménagères, gardien.
Chauffage gaz individuel.
Transmettez-nous votre numéro unique départemental. Si vous ne l'avez
pas, voici le lien qui vous permettra de faire votre demande de logement social
en ligne : Demande de logement social en ligne
(demande-logement-social.gouv.fr)
Sans numéro unique, votre demande ne pourra pas être étudiée.
Pas de frais d'agence. Candidature uniquement
par mail, pas d'appel téléphonique.
- Annonce Pro
- Pièces4
- Chambres3
- Surface81 m2
- DPED



