- Photos
- Localisation
- Infos Poitiers




Description Appartement Poitiers
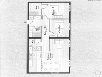
A POITIERS, dans un environnement calme, nous vous proposons dans la résidence neuve LE TROUBADOUR, un appartement T3 N°2J de 79.34 m². Situé au 2ème étage avec ascenseur, il comprend une entrée avec placard, un séjour de 33.64 m² avec cuisine, deux chambres dont une de 13.28 m² et une autre de 10.23 m², une salle d'eau et un WC séparé. Eau froide, chauffage et eau chaude individuels électrique. Entretien parties communes, entretien ascenseur et espaces verts communs, compris dans les provisions sur charges mensuelles et donnant lieu à une régularisation annuelle. Les honoraires de location TTC (à la charge du locataire) incluent le montant de rédaction des états des lieux facturé pour 240 euros TTC, après réalisation lors de l'entrée dans les lieux. Disponible le 23/03/2026. Pour plus de détails sur ce logement, vous pouvez consulter la fiche descriptive de ce bien, sur votre site internet AFEDIM
Les informations sur les risques auxquels ce bien est exposé sont disponibles sur le site Géorisques :
- Annonce Pro
- Pièces3
- Chambres2
- Séjour33 m2
- Surface79 m2
- DPEC



