- Photos
- Localisation
- Infos Agde






Description Appartement Agde
Les photos présentées dans cette annonce ne correspondent pas au logement proposé à la location, mais à un autre appartement situé dans la même résidence, à titre illustratif.
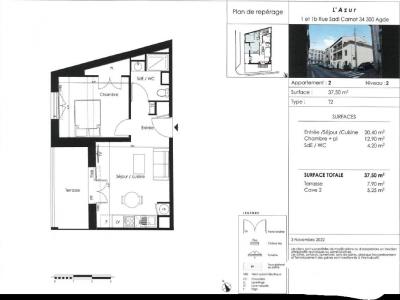
DomUp Location vous propose à la location un appartement T2 de 37,50 m², idéalement situé à Agde, en plein centre-ville, au sein d'une résidence rénovée.
Situé au 1er étage sans ascenseur, ce logement se compose d'une pièce de vie de 20,40 m² ouvrant sur une terrasse de 7,90 m², idéale pour profiter des beaux jours. Vous y trouverez également une chambre de 12,90 m² avec placard intégré, ainsi qu'une salle d'eau avec WC de 4,20 m².
Une cave de 5,25 m² en rez-de-chaussée complète ce bien.
Une place de parking est disponible en option au tarif de 30 E par mois.
Références exigées - un dossier complet devra être déposé avant toute visite.
Aucun frais d'agence - loyer payable à terme échu.
Pour tout renseignement complémentaire ou pour organiser une visite, contactez-nous au 05 61 10 50 10.
- Annonce Pro
- Pièces2
- Chambre1
- Surface34 m2

