- Photos
- Localisation
- Infos Ormesson-sur-marne







Description Maison Ormesson-sur-marne
Maison familiale de 184 m² habitables (193 m² au sol), 5 chambres, trois niveaux autonomes, garage motorisé et jardin, située dans une rue pavillonnaire calme, à proximité immédiate des écoles, commerces, transports et du marché. Le bien offre une organisation modulable, adaptée à une famille, au télétravail ou à une activité professionnelle indépendante.
Caractéristiques principales
- Surface habitable : 184 m² (surface au sol : 193 m²)
- Parcelle : 245 m²
- Jusqu'à 5 chambres selon configuration
- 3 niveaux exploitables
- Garage motorisé, buanderie, cuisine d'été
- Double vitrage, volets électriques, stores bannes
- Chauffage gaz (chaudière Frisquet)
- Orientation principale Est-Ouest
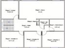
Organisation des espaces
Rez-de-chaussée (40 m² )
- Hall d'entrée, bureau, chambre, salle d'eau avec wc
- Annexes : buanderie, grand garage motorisé, cuisine d'été
- Accès direct terrasse et jardin
1er étage (81 m²)
- Cuisine aménagée et équipée
- Salon salon / salle à manger lumineux avec balcon exposé ouest
- 3 chambres
- Salle de bain
- wc indépendant
2ème étage (63 m²)
- 2 grandes pièces polyvalentes : chambres, espace détente...
- Cheminée
- Pièce d'eau avec wc
Cadre de vie
Maison située dans un environnement résidentiel recherché, avec une circulation limitée et une ambiance familiale. Les espaces de vie bénéficient d'une luminosité traversante, et le jardin offre un espace extérieur agréable pour les repas et moments de détente
Atouts majeurs
- Trois niveaux autonomes : idéal famille, télétravail, activité libérale
- Combles aménagés avec cheminée
- Cuisine d'été + terrasse pour un second espace de vie
Les informations sur les risques auxquels ce bien est exposé sont disponibles sur le site Géorisques :
Prix de vente : 448 000 E
Honoraires charge vendeur
Contactez votre consultant megAgence : Matthieu CHATIGNOUX, Tél. : 0614720070, E-mail : - EI - Agent commercial immatriculé au RSAC de VERSAILLES sous le numéro 990 674 228
- Annonce Pro
- Pièces6
- Chambres5
- Sbds3
- Construction1972
- Terrain245 m2
- Surface184 m2
- DPED



