- Photos
- Localisation
- Infos Saint-fons



Description Appartement Saint-fons
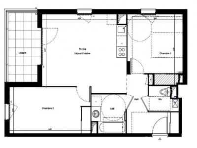
A104 - LE MARIUS - ST FONS. T3 DE 60m² DANS UNE RESIDENCE RECENTE (2021) DE STANDING A FAIBLE CONSOMMATION ENERGETIQUE. Agréable pièce de vie avec cuisine aménagée (plaques vitro, four, hotte, meubles hauts et bas), deux belles chambres avec placard aménagé, salle de bain avec baignoire et vasque, WC séparés.
Garage individuel fermé en sous-sol sécurisé. CHAUFFAGE IND AU GAZ. VIDEOPHONE. PROCHE DES COMMERCES ET TRANSPORTS.
CONSOMMATION TOTALE D'ENERGIE ENTRE 493EUR et 667EUR/AN (prix des énergies indéxées au 01/01/2021)
Les informations sur les risques auxquels ce bien est exposé sont disponibles sur le site Géorisques : www. georisques. gouv. fr
Les informations sur les risques auxquels ce bien est exposé sont disponibles sur le site Georisques : georisques.gouv.fr
- Annonce Pro
- Pièces3
- Construction2021
- Surface60 m2
- DPEC
Contact



