- Photos
- Localisation
- Infos Lyon-3eme-arrondissement




Description Appartement Lyon-3eme-arrondissement
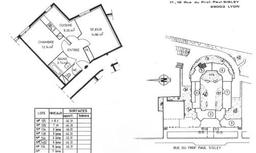
LYON 3 / PARC SISLEY - TRAMWAY DAUPHINE LACASSAGNE
T2 de 46,45 m² situé au 5ème étage avec ascenseur, dans un bel immeuble récent avec espaces verts, à deux pas du Parc SILSLEY.
Il se compose d'un séjour, d'une cuisine, d'une chambre, d'une salle de bains et WC indépendant.
A cela s'ajoute un parking en sous-sol pour 60 E/mois.
Disponibilité immédiate
Chauffage individuel électrique
Eau froide collective
Eau chaude individuelle électrique
Loyer hors charges : 700,00 E
Provision sur charges : 60,00 E
Dépôt de garantie : 700,00 E
Honoraires de location : 464,50 E
Frais d'état des lieux : 139,35 E
Zone soumise à l'encadrement des loyers
Loyer médian : 13,60 E/m²
Loyer majoré : 16,30E/m²
Complément de loyer (inclus dans le loyer) : 0 E
Les informations sur les risques auxquels ce bien est exposé sont disponibles sur le site Géorisques:
Les informations sur les risques auxquels ce bien est exposé sont disponibles sur le site Géorisques :
- Annonce Pro
- Pièces2
- Chambre1
- Sbd1
- Surface46 m2
- DPEC