- Photos
- Localisation
- Infos Vouziers




Description Appartement Vouziers
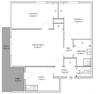
A louer appartement de Type 3 sur Vouziers.
Ce logement situé au 3e étage comprend : une cuisine donnant sur une loggia, un séjour donnant sur le balcon, deux chambres, une salle de bains, wc séparés et une cave.
Chauffage au gaz compris dans les charges.
Logement libre de suite.
DPE en cours
Les informations sur les risques auxquels ce bien est exposé sont disponibles sur le site Georisques : georisques.gouv.fr
- Annonce Pro
- Pièces3
- Chambres2
- Sbd1
- Surface59 m2
Contact

