- Photos
- Localisation
- Infos Nantes







Description Appartement Nantes
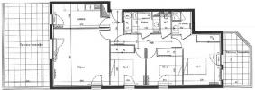
NANTES - ZOLA/MELLINET - Dans Résidence récente de standing, type 4 comprenant: entrée avec placard, séjour de 24 m² sur parquet donnant sur terrasse de 28.50 m² exposé Ouest, cuisine aménagée, 3 chambres sur parquet avec placard dont 1 donnant sur terrasse de 9.60 m², salle de bains, salle d'eau, wc. Garage en sous-sol. "Les informations sur les risques auxquels ce bien est exposé sont disponibles sur le site Géorisques: "
Les informations sur les risques auxquels ce bien est exposé sont disponibles sur le site Georisques : georisques.gouv.fr
- Annonce Pro
- Pièces4
- Chambres3
- Sbds2
- Construction2011
- Surface86 m2
- DPED
Contact




