- Photos
- Localisation
- Infos Clermont-ferrand



Description Appartement Clermont-ferrand
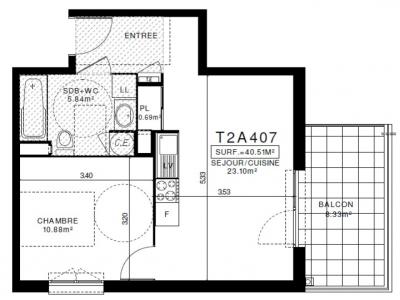
A407 LE FLAUBERT : DOUBLEMENT EXPOSE T2 LUMINEUX EN ETAGE ELEVE D'UNE RESIDENCE RECENTE BBC DE STANDING. TERRASSE DE PLUS DE 8M² AVEC VUE DEGAGEE. Pièce à vivre avec cuisine US aménagée (plaques vitro, four, hotte, meubles hauts et bas). Une chambre en sol parquet. Salle de bain avec meuble sous vasque et sèche-serviettes. Place de parking privative en sous-sol. VISIOPHONE. PROCHE COMMERCES. Consommation d'énergie totale entre 715 EUR et 967 EUR par an (prix moyens des énergies indexés au 1er janvier 2021).
Les informations sur les risques auxquels ce bien est exposé sont disponibles sur le site Géorisques : www. georisques. gouv. fr
Les informations sur les risques auxquels ce bien est exposé sont disponibles sur le site Georisques : georisques.gouv.fr
- Annonce Pro
- Pièces2
- Chambre1
- Surface40 m2
- DPEC
Contact




Location Blanzat