- Photos
- Localisation
- Infos Cholet



Description Appartement Cholet
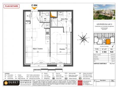
A CHOLET, nous vous proposons dans la résidence neuve LES RIVES DU LAC, un appartement T2 n°C004 de 41.17m². Situé au RDC du bâtiment C, il comprend un séjour/cuisine de 20.76m², une chambre de 12.70m², une salle d'eau et un WC séparé. Chauffage individuel électrique et eau chaude individuel ballon thermodynamique. Une place de parking extérieur n°12. Entretien parties communes, ascenseur et espaces verts communs, compris dans les provisions sur charges mensuelles et donnant lieu à une régularisation annuelle. Les honoraires de location de 451 euros TTC (à la charge du locataire) incluent le montant de rédaction des états des lieux facturé pour 123 euros TTC, après réalisation lors de l'entrée dans les lieux. Plus de détails sur notre site AFEDIM. Disponibilité janvier 2026.
Les informations sur les risques auxquels ce bien est exposé sont disponibles sur le site Géorisques :
- Annonce Pro
- Pièces2
- Chambre1
- Séjour20 m2
- Surface41 m2
- DPEA



