- Photos
- Localisation
- Infos Feyzin



Description Appartement Feyzin
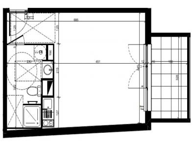
N°12 LE CLOS DU FORT - FEYZIN - T1 DE 30M² AVEC SON BALCON COTE VERDURE, DANS UNE PETITE RESIDENCE RECENTE (2021) AU CENTRE DU VILLAGE DE FEYZIN, A PROXIMITE IMMEDIATE DES PRINCIPALES COMMODITES.
Pièce de vie de 24m² avec cuisine aménagée et équipée (plaque vitro, hotte, meubles hauts et bas), salle d'eau avec bac à douche, vasque et WC.
Chauffage individuel électrique à basse consommation.
Place de parking privatif en sous-sol sécurisé
CONSOMMATION TOTALE D'ENERGIE ESTIMEE ENTRE 428EUR et 619EUR/AN (prix moyen des énergies indéxées au 01/01/2021)
Les informations sur les risques auxquels ce bien est exposé sont disponibles sur le site Géorisques : www. georisques. gouv. fr
Les informations sur les risques auxquels ce bien est exposé sont disponibles sur le site Georisques : georisques.gouv.fr
- Annonce Pro
- Pièce1
- Construction2022
- Surface30 m2
- DPEC
Contact



