- Photos
- Localisation
- Infos Olonne-sur-mer







Description Appartement Olonne-sur-mer
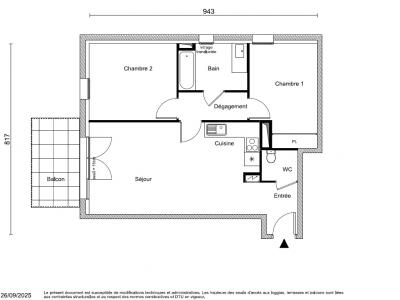
Appartement T3 aux Sables d'Olonne à 1km de Leclerc Ylium. Appartement de standing sur 2 niveaux aux dernières normes composé de 2 chambres, une salle de bain, un wc séparé, une cuisine aménagée ouverte sur le séjour. Baie vitrée donnant sur un balcon. Le bien est vendu avec 2 places de stationnement privatives. Chauffage collectif au gaz et radiateurs basse température, vidéophone et digicode. Disponible au 2ème semestre 2027. T3 également disponible en RDC avec jardin. Dossier complet sur demande.
Mandat réf.432741. Les informations sur les risques auxquels ce bien est exposé sont disponibles sur le site Géorisques : .
Pour visiter et vous accompagner dans votre projet, contacter Ilana DANEL au 06.03.84.74.89 ou
Cette présente annonce a été rédigée sous la responsabilité éditoriale de Ilana DANEL agissant sous le statut d'agent commercial immatriculé au RSAC LA ROCHE SUR YON 823934450 auprès de la SAS PROPRIETES PRIVEES, Réseau national immobilier, au capital de 40000 euros, 44 ALLÉE DES CINQ CONTINENTS - ZAC LE CHÊNE FERRÉ, 44120 VERTOU, RCS Nantes n° 487 624 777 00040, Carte professionnelle T et G n° CPI 4401 2016 000 010 388 CCI Nantes-Saint Nazaire. Garantie GALIAN - 89 rue de la Boétie, 75008 Paris
Copropriété de 76 lots - dont 36 lots habitation.().
Ilana DANEL (EI) Agent Commercial - Numéro RSAC : LA ROCHE SUR YON 823934450 - .
- Annonce Pro
- Pièces3
- Chambres2
- Sbd1
- Séjour64 m2
- Surface64 m2


