- Photos
- Localisation
- Infos Portel-des-corbieres







Description Terrain Portel-des-corbieres
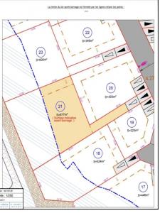
À VENDRE Terrain 677 m2 viabilisé - Lotissement "La Capelle"
À Portel-des-Corbières, charmant village au c?ur des Corbières, à 15 min de Narbonne et 20 min des plages
Parcelle de 677 m²
Terrain viabilisé (eau, électricité, voirie)
Libre choix du constructeur
Proche commerces, écoles et services
Accès rapide A9.
Prix : 117 000 E
Idéal pour primo-accédants, projet familial ou investisseurs à la recherche d'un bien à fort potentiel.
Cadre de vie privilégié entre vignes et garrigue, parfait pour résidence principale ou secondaire.
Pour tous renseignement n'hésitez pas à me contacter
Contact : 06 50 82 62 78
Réseau EV Immobilier
« Les informations sur les risques auxquels ce bien est exposé sont
disponibles sur le site Géorisques ».
- Annonce Pro
- Surface150 m2


