- Photos
- Localisation
- Infos Lyon-8eme-arrondissement







Description Appartement Lyon-8eme-arrondissement
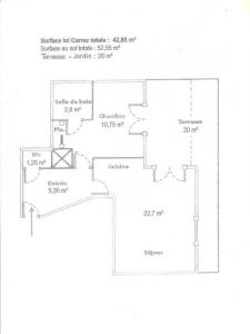
Disponible dès le 1er février, ce charmant T2 meublé de 43 m2 en rez-de jardin et hors de vue de la rue se situe au c?ur d'une résidence de caractère très calme et agréable, arborée, entièrement sécurisé et clôturée, avec gardien, digicode, visiophone et badge Vigik.
Il présente les caractéristiques suivantes : un hall d'entrée, des WC séparés avec chauffe-eau, une pièce de vie avec kitchenette entièrement équipée, une chambre avec placard-penderie, une salle de bains attenante avec baignoire et sèche-serviettes. Les baies double vitrage avec volets télécommandés de la chambre et du salon donnent accès, en jouissance exclusive, à un extérieur intimiste et sans vis-à-vis constitué d'une terrasse dallée et d'un jardinet. L'ameublement et l'électro-ménager sont en excellent état et l'appartement est équipé de la fibre, d'un lave-linge et de radiateurs programmables à fluide caloporteur. Une cave en sous-sol complète ce bien exceptionnel proche de toutes les commodités, métro D, tram T2, bus C16, C25, Mairie du 8éme, Universités, Maison de la Danse, Intermarché, Netto, Aldi, Lidl etc. Le stationnement dans ce quartier prisé de Monplaisir est très aisé et surtout gratuit.
Zone soumise à encadrement des loyers : loyer mensuel hors charges 835 E, provisions mensuelles pour charges 65 E (électricité non comprise dans les charges). Soit un loyer mensuel de 900 E charges incluses. Dépôt de garantie 835 E.
Updated on 11/01/2026
Mise à jour le 11/01/2026
- Annonce Pro
- Pièces2
- Sbd1
- Surface43 m2
- DPED



