- Photos
- Localisation
- Infos Saint-raphael




Description Parking Saint-raphael
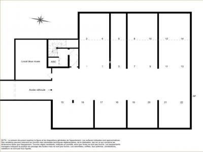
Au sein de cette résidence neuve, une place de parking sécurisé, de type PMR, vous garantissant confort et sécurité, grâce à sa proximité du centre-ville et de nombreux commerces.
Dimensions: 5m de long x 3.3m de large (hauteur +/- 4 m - Entre 4m et 4.7m)
Place n°15 sur le plan ci-joint
Les informations sur les risques auxquels ce bien est exposé sont disponibles sur le site Géorisques :
Les informations sur les risques auxquels ce bien est exposé sont disponibles sur le site Georisques : georisques.gouv.fr
- Annonce Pro
- Surface16 m2
Contact


Vente Fayence