- Photos
- Localisation
- Infos Grenoble



Description Appartement Grenoble
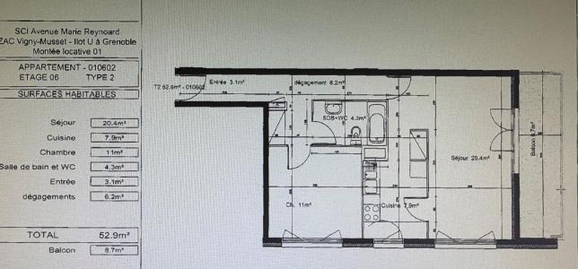
T2 de 52.90m² au 6ème étage avec ascenseur. Entrée, salle de bain, wc, 1 chambre, séjour avec balcon et cuisine séparée.
ENVIRONNEMENT
Proche des commerces, écoles, collège et clinique.
Proximité de transport en commun
LES +
Proche de toutes commodités
Les informations sur les risques auxquels ce bien est exposé sont disponibles sur le site Georisques : georisques.gouv.fr
- Annonce Pro
- Pièces2
- Chambre1
- Sbd1
- Surface53 m2
Contact

