- Photos
- Localisation
- Infos Dammarie-les-lys



Description Appartement Dammarie-les-lys
Pour visiter, candidatez gratuitement sur le site LA GESTION EN LIGNE Cliquez sur JE VEUX VISITER et indiquez la reference : 286200
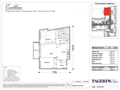
Appartement T3 neuf au 2 étage dans petite résidence avec cuisine équipée et balcon donnant sur petit jardin. 2 places de parking (70E la place par mois).
Les informations sur les risques auxquels ce bien est exposé sont disponibles sur le site Georisques : georisques.gouv.fr
- Annonce Pro
- Pièces3
- Surface62 m2
Contact


