- Photos
- Localisation
- Infos Clermont-ferrand



Description Appartement Clermont-ferrand
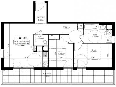
A305 LE FLAUBERT : T3 COCON ENTIEREMENT TOURNE VERS SA TERRASSE DE 18M² SANS VIS-A-VIS DANS RESIDENCE RECENTE (2024) DE STANDING A FAIBLE CONSOMMATION ENERGETIQUE. Pièce à vivre claire avec cuisine US aménagée (plaques vitro, four, hotte, meubles hauts et bas) .2 chambres en sol parquet dont une avec placard mural aménagé. Salle de bain avec meuble sous vasque et sèche-serviettes. Place de parking privative en sous-sol privative. CHAUFFAGE IND AU GAZ. VISIOPHONE. PROCHE COMMERCES. Consommation d'énergie totale entre 433 EUR et 586 EUR par an (prix moyens des énergies indexés au 1er janvier 2021).
Les informations sur les risques auxquels ce bien est exposé sont disponibles sur le site Géorisques : www. georisques. gouv. fr
Les informations sur les risques auxquels ce bien est exposé sont disponibles sur le site Georisques : georisques.gouv.fr
- Annonce Pro
- Pièces3
- Chambres2
- Surface59 m2
- DPEC
Contact




Location Blanzat