- Photos
- Localisation
- Infos Havre






Description Appartement Havre
FRAIS D AGENCE OFFERT
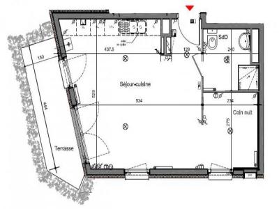
Quartier Eure - Brindeau : Dans un immeuble récent Appartement T1 bis de 39 m² situé au rez-de-chaussée d'une copropriété sécurisée et verdoyante.
Le logement comprend une entrée, un grand séjour avec une cuisine, une salle de douche, un coin nuit. Grandes baies vitrées au sud, logement lumineux.
Une place de stationnement comprise avec le logement.
Le chauffage est au gaz individuel, visiophone, double vitrage PVC avec volets.
Les provisions sur charges comprennent l'entretien des parties communes et des espaces vert, elles sont régulées une fois par an.
Les informations sur les risques auxquels ce bien est exposé sont disponibles sur le site Georisques : georisques.gouv.fr
- Annonce Pro
- Pièce1
- Chambre1
- Séjour28 m2
- Surface39 m2
- DPED
Contact




