- Photos
- Localisation
- Infos Savigny-le-temple



Description Appartement Savigny-le-temple
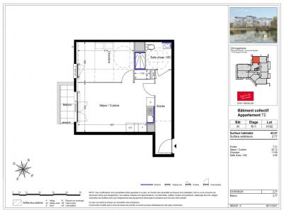
A Savigny-le-Temple, nous vous proposons cet appartement T2 de 43.57m² situé au 1er étage de la résidence Vue Lac avec ascenseur.
Il se compose d'un séjour, d'une cuisine, d'une chambre de 11.59 m², d'un balcon de 2.77m² idéal pour vous détendre et d'une salle d'eau avec WC.
L'appartement est équipé d'un système de chauffage collectif et d'une production d'eau chaude collective par chaudière à gaz.
Les frais d'entretien des parties communes, le local vélo, l'ascenseur et le vigik sont compris dans les provisions sur charges mensuelles et donnent lieu à une régularisation annuelle.
Les honoraires de location TTC (à la charge du locataire) incluent le montant de rédaction des états des lieux facturé pour 130 euros TTC, après réalisation lors de l'entrée dans les lieux.
Pour plus de détails sur ce logement, vous pouvez consulter la fiche descriptive de ce bien, sur notre site internet afedim-locations.
Les informations sur les risques auxquels ce bien est exposé sont disponibles sur le site Géorisques :
- Annonce Pro
- Pièces2
- Chambre1
- Séjour20 m2
- Surface43 m2
- DPEC




