- Photos
- Localisation
- Infos Dijon





Description Appartement Dijon
Im-Ô, à vos côtés pour votre bien
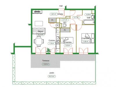
Appartement de type 3 au 119 BIS avenue Victor Hugo à Dijon.
Situé dans une charmante résidence construite en 2012 avec accès sécurisé par badge, situé au rez de chaussée, cet appartement de 59 m² se compose d'un salon avec une cuisine ouverte de 23 m², donnant sur une terrasse de 15 m² et un jardin privatif de 49 m². L'espace nuit comprend 2 chambres, une salle de bain et des WC. Le logement est également équipé de plusieurs placards de rangement.
Cet appartement dispose d'un chauffage individuel par pompe à chaleur. Les charges comprennent l'abonnement à l'eau froide ainsi qu'un contrat de maintenance multi-services.
L'emplacement permet de profiter des commodités et un accès rapide au centre ville par les lignes de bus et au tram Divia à proximité. Il est également possible de louer un garage en supplément.
Pour toute information complémentaire, merci de contacter Madame SOLANES Loane, ou Madame GUILLOUET Margaux.
- Annonce Pro
- Pièces3
- Chambres2
- Sbd1
- Surface59 m2
- DPEC




