- Photos
- Localisation
- Infos Dijon




Description Appartement Dijon
Im-Ô, à vos côtés pour votre bien
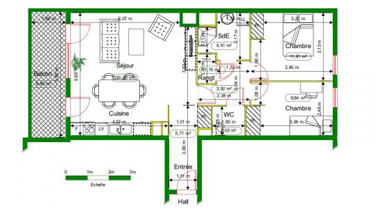
Appartement de type 3 au 36 rue Auguste Brullé à Dijon.
Quartier Jouvence, au sein d'une résidence neuve construite en 2025 avec accès sécurisé par badge. Situé au 2ème étage avec ascenseur, cet appartement de 69 m² se compose d'un séjour avec cuisine ouverte et aménagée de 30 m², donnant sur un agréable balcon (exposition Ouest).
L'espace nuit comprend deux chambres équipées de placards intégrés, une salle d'eau et des WC séparés.
Le logement bénéficie du chauffage urbain collectif au gaz, ainsi qu'un contrat multi-services inclus dans les charges.
Son emplacement permet de profiter de toutes les commodités, avec un accès rapide aux lignes de bus et au tram Divia à proximité. Il est également possible de louer un garage en supplément.
Pour toute information complémentaire, merci de contacter Madame Margaux GUILLOUET.
- Annonce Pro
- Pièces3
- Chambres2
- Surface69 m2
- DPEC





Location Chatillon-sur-seine