- Photos
- Infos Montreuil







Description Appartement Montreuil
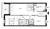
Fiche Id-REP166034 : Montreuil, T3 3/4p -loggia ouest - parking - cave d'environ 65 m2 comprenant 3 piece(s) dont 2 chambre(s) - Construction 2025 Traditionnelle - Equipements annexes : balcon - parking - digicode - double vitrage - ascenseur - cave - chauffage : Gaz Individuel Livraison 2025 - Plus d'informations disponibles sur demande... - Mentions légales : Proposé à la vente à 345000 Euros (honoraires à la charge du vendeur) - Bien en copropriété - Charges annuelles : 2200 Euros/an (soit 183 Euros/mois) - Affaire suivie par Mr Maximilien ZANIER (Agent immobilier - Responsable) - Reseau Immo-Diffusion Bagnolet - Pour plus d'informations, contactez notre secrétariat au 09 74 53 13 81 (Appel gratuit ou prix d'une communication locale)
- Annonce Pro
- Pièces3
- Chambres2
- Construction2025
- Terrain7 m2
- Surface65 m2
- DPEB



