- Photos
- Localisation
- Infos Lyon-6eme-arrondissement



Description Appartement Lyon-6eme-arrondissement
RUE VENDOME 69006 LYON - PROCHE PARC DE LA TETE D'OR
Proche de toutes les commodités, commerces et transports en commun
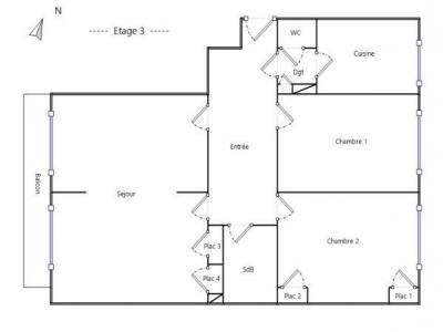
Appartement T4 au 3ème étage, en cours de rénovation, composé d'une entrée, d'une cuisine, d'un séjour donnant sur un balcon de 4.96 m², de deux chambres, d'une salle de bains et de wc indépendants.
Un garage est compris dans le loyer
Bien soumis à l'encadrement des loyers :
- Loyer de référence : 1 064.95 E
- Loyer de référence majoré : 1 281.55 E
Contact : Pauline
Les informations sur les risques auxquels ce bien est exposé sont disponibles sur le site Géorisques :
Les informations sur les risques auxquels ce bien est exposé sont disponibles sur le site Georisques : georisques.gouv.fr
- Annonce Pro
- Pièces3
- Chambres2
- Sbd1
- Surface90 m2
- DPED
Contact



