- Photos
- Localisation
- Infos Dijon




Description Appartement Dijon
Im-Ô, à vos côtés pour votre bien
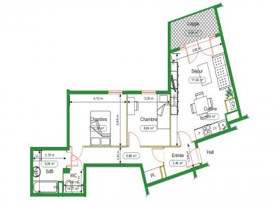
Appartement de type 3 situé au 2 rue des Génois à Dijon.
Situé dans une résidence neuve construite en 2025 avec accès sécurisé par badge, situé au rez de chaussée, cet appartement de 62 m² se compose d'un agréable séjour avec cuisine ouverte et aménagée, donnant sur un balcon privatif. L'espace nuit comprend deux chambres, une salle de bain et des WC séparés.
Le logement bénéficie du chauffage individuel au gaz naturel, ainsi qu'un contrat multi-services inclus dans les charges.
L'emplacement permet de profiter des commodités à pied et un accès rapide au centre-ville grâce aux lignes de bus et au tram Divia à proximité. Il est également possible de louer une place de parking en supplément.
Pour toute information complémentaire, merci de contacter Madame SOLANES ou Madame GUILLOUET.
- Annonce Pro
- Pièces3
- Chambres2
- Sbd1
- Surface62 m2
- DPEC




