- Photos
- Localisation
- Infos Lens



Description Appartement Lens
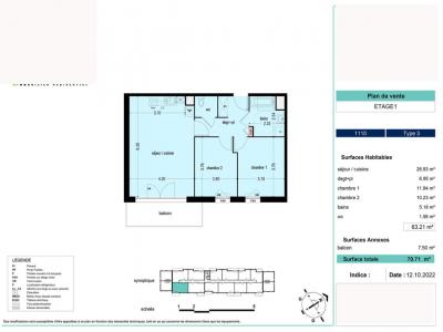
A LENS, à proximité de LILLE et ARRAS et à deux pas de l'hyper-centre, nous vous proposons dans la résidence LES HAUTS DE MONTGRE un appartement type 3 de 63.18 m² n°1110. Il se compose d'un séjour de 26.93 m² ouvert sur une cuisine meublée et équipée (plaque, hotte, évier)., de 2 chambres, une salle de bains avec WC séparé. Un balcon de 7.5 m² exposé SUD complète ce bien. Un emplacement de stationnement en extérieur n°121.
Entretien parties communes, ascenseur et espaces verts, compris dans les provisions sur charges mensuelles et donnant lieu à une régularisation annuelle.
Les honoraires de location TTC (à la charge du locataire) incluent le montant de rédaction des états des lieux facturé pour 505 euros TTC, après réalisation lors de l'entrée dans les lieux.
Plus de détails sur notre site internet AFEDIM.
Logement en cours de construction - DPE à venir
Les informations sur les risques auxquels ce bien est exposé sont disponibles sur le site Géorisques :
- Annonce Pro
- Pièces3
- Chambres2
- Sbd1
- Surface63 m2

