- Photos
- Localisation
- Infos Maromme



Description Appartement Maromme
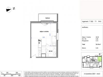
A MAROMME, à proximité des commerces et commodités, nous vous proposons dans la résidence SYMBIOSE AQUA TERRA, un appartement de T1 n°T202 de 33.16 m², situé au 2ème étage avec ascenseur. Il comprend un séjour de 26.56 m² avec cuisine ouverte donnant sur un balcon de 5.50 m² et une salle d'eau avec WC. Un emplacement de stationnement PMR en intérieur n°T15. Eau chaude et chauffage (collectif). Entretien parties communes, entretien ascenseur et espaces verts communs, compris dans les provisions sur charges mensuelles et donnant lieu à une régularisation annuelle. Les honoraires de location TTC (à la charge du locataire) incluent le montant de rédaction des états des lieux facturé pour 100euros TTC, après réalisation lors de l'entrée dans les lieux. Disponible le 19/05/2026. Pour plus de détails sur ce logement, vous pouvez consulter la fiche descriptive de ce bien, sur votre site internet AFEDIM.
Les informations sur les risques auxquels ce bien est exposé sont disponibles sur le site Géorisques :
- Annonce Pro
- Pièce1
- Séjour26 m2
- Surface33 m2
- DPEC



